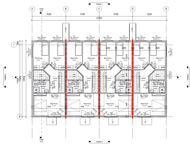
Deze grondgebonden woning is een ruime eengezinswoning (110 m2). Eén woning bestaat uit twee modules. Eén module voor de begane grond en één module voor de eerst verdieping. De woningen hebben een efficiënte plattegrond die naar wens van de klant kan worden aangepast.






